Beggelderdijk 3
Dinxperlo

Omschrijving

Let Op!! Door de vele reacties op deze woning kunnen we op dit moment geen nieuwe bezichtigingen meer inplannen. Wanneer u interesse heeft kunnen we u op de wachtlijst voor deze woning zetten!

Ruime TUSSENWONING gelegen nabij het Blauwe Meer, halverwege het dorp en het buitengebied. De woning is voorzien van een uitbouw ten behoeve van de keuken, een stenen berging, een overkapping en praktische schuur en een diepe tuin op het zuiden. De perceeloppervlakte bedraagt 172 m², de inhoud van de woning is circa 311 m³ en het gebruiksoppervlakte wonen bedraagt circa 80 m². Het bouwjaar is 1958.

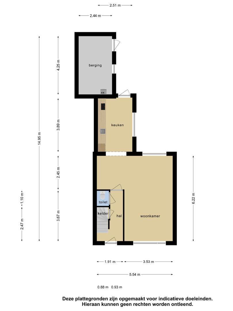
Indeling:
Begane grond: entree met trapopgang, kelder en toilet; L-vormige woonkamer; half open uitgebouwde keuken voorzien van aanrechtblok met diverse inbouwapparatuur en een achteruitgang naar de tuin.
1e verdieping: overloop met bergkast; 3 slaapkamers met vaste kasten; nieuwe douchecel met wastafel.
2e verdieping: via luik bereikbare vliering.

Algemeen:
-De woning is voorzien van een ruime voortuin en er is voldoende parkeergelegenheid in de directe nabijheid.
-In de achtertuin is een overdekt terras aanwezig waaronder heerlijk buiten kan worden gezeten. De tuin heeft een behoorlijke diepte en is onderhoudsarm aangelegd. De achtertuin is op het zuiden gericht, heeft een prima bezonning en is achterom bereikbaar.
-De woning is grotendeels voorzien van dubbele beglazing en van rolluiken en wordt centraal verwarmd door middel van radiatoren aangesloten op een gasgestookte cv-ketel Nefit HR uit 2011 (leaseketel).
-De woning is direct bewoonbaar, maar kan ook eenvoudig worden aangepast aan de wensen van de toekomstige bewoners.
-Zeer geschikt voor starters en/of beleggers.
-De woning is direct te aanvaarden.

Locatie

[ { "address": "Beggelderdijk 3", "zipCode": "7091 HD", "city": "Dinxperlo", "lat": 51.8607382, "lng": 6.4820669, "heading": 0, "pitch": 0 } ]

Kenmerken

Overdracht

Prijs
Status
Verkocht
Oplevering
Per direct

Bouw

Soort woonhuis
Eengezinswoning, Tussenwoning
Soort bouw
Bestaande bouw
Bouwjaar
1945-1959
Onderhoud binnen
Redelijk
Onderhoud buiten
Redelijk

Oppervlakten en inhoud

Woonoppervlakte
80m²
Perceeloppervlakte
172m²
Overig oppervlakte
15m²
Inhoud
311m³

Indeling

Aantal kamers
6
Aantal slaapkamers
3
Aantal verdiepingen
4
Voorzieningen
Rolluiken, TV-Kabel, Glasvezel kabel

Energie

Isolatie
Gedeeltelijk dubbel glas
Warm water
C.V.-ketel
Verwarming
C.V.-ketel
Ketel
ATAG HR (2011, Combi-ketel, Lease)

Buitenruimte

Ligging
Aan rustige weg, In woonwijk
Tuin
Achtertuin, Voortuin
Achtertuin
Zuid, 75m², 500×1500cm
Schuur
Aangebouwd steen

Garage

Plattegronden

Digitale plattegronden

Meer informatie of afspraak tot bezichtigen

Onderstaand kunt u uw eventuele vragen stellen of geef hier uw voorkeurs data en tijd voor een bezichtiging aan.

Uw bericht is naar ons verzonden. Wij nemen zo snel mogelijk contact met u op.

Sorry, we kunnen helaas niet met zekerheid vaststellen of je een mens of een geautomatiseerde bot/spammer bent. Hierdoor kunnen we het formulier dat je hebt ingevuld niet verzenden. Probeer het opnieuw of neem direct contact op met de makelaar via e-mail.

Er is iets mis gegaan met het versturen van het formulier.
Controleer of u alle velden (goed) heeft ingevoerd en probeer het nog een keer.

recaptcha
reCAPTCHA
PrivacyTerms