Albert Cuypstraat 2
Groenlo

Omschrijving

Met veel plezier mogen wij u deze Royale HOEKWONING aanbieden. De woning is aantrekkelijke gelegen in een rustige woonwijk op korte afstand van voorzieningen en gunstig ten opzichte van de uitvalswegen en het buitengebied langs de Slinge. Deze praktisch ingedeelde woning beschikt over 4 slaapkamers en een kantoor- of praktijkruimte. De woning is door deze inpandige kantoor/praktijkruimte erg geschikt voor werk aan huis. Bouwjaar 1982, gebruiksoppervlakte wonen liefst 174 m2 en perceeloppervlakte 230 m2.

Globale indeling:

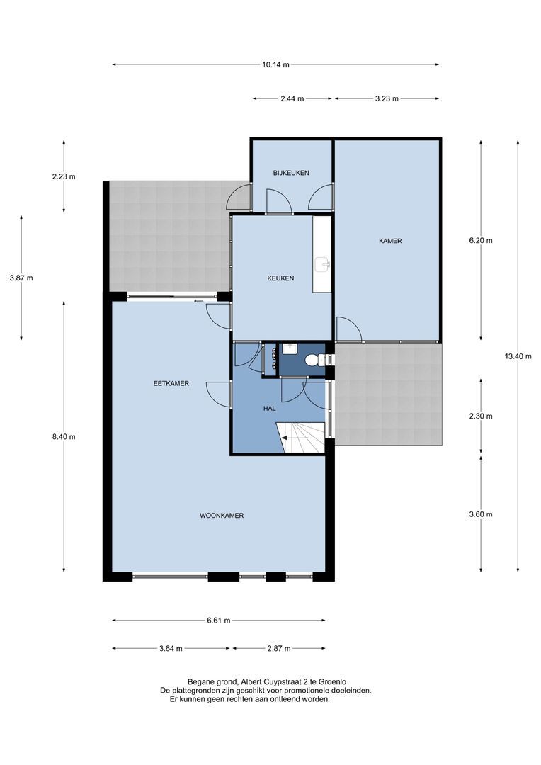
Begane grond: Entree/hal met trapopgang, toilet met fonteintje en een meterkast, L-vormige woonkamer voorzien van een open haard/houtkachel en van een schuifpui aan de (achter)tuinzijde, de woonkeuken is voorzien van een inbouwkeuken in lichte kleurstelling en met inbouwapparatuur (o.a. gaskookplaat, afzuigkap, koelkast en een combi- magnetron). De bijkeuken is voorzien van een aansluiting voor een wasmachine en -droger. De bijkeuken biedt toegang tot de achtertuin en tot de kantoor/praktijkruimte. Deze ruimte is ook vanaf de voorzijde van de woning toegankelijk (via een loopdeur en een dubbele glazen deur).
Eerste verdieping: Overloop, drie slaapkamers (waarvan de ouderslaapkamer is voorzien van 4 inbouwkasten) en een ruime, geheel betegelde, badkamer met douche, toilet en twee wastafels.
Tweede verdieping: Via een vaste trap bereikbare overloop met zijraam boven de trapopgang waardoor er mooi daglicht binnenvalt; een extra slaapkamer die voorzien is van Velux-dakraam voor extra lichtinval en van bergruimte onder de knieschotten.

Algemeen:

- De woning is voorzien van houten kozijnen met dubbel glas op de begane grond en enkel glas op de verdieping;
- de dubbele deur in de praktijkruimte is van kunststof voorzien van dubbel glas;
- de overloop op zolder is voorzien van een vaste airco-unit en biedt extra ruimte voor een werkplek;
- de woning beschikt over spouwmuur- en dakisolatie;
- verwarming doormiddel van een Cv-installatie (Nefit 2005, gereviseerd in 2022) en een open haard in de woonkamer;
- kindvriendelijke woonomgeving, op korte afstand van een basisschool en nabij een rustige kinderspeelplaats, 'crossbosje' en voetbalveldje;
- voldoende parkeergelegenheid op eigen terrein en in de omgeving;
- de achtertuin met terrassen, borders en een overkapping met zitje is gelegen op het oosten;
- de achtergevel is voorzien van een zonnescherm over de gehele breedte;
- de gehele begane grond is voorzien van plavuizen;
- de woning is ingemeten volgens de branche brede meetinstructie.

Deze woning bezichtigen? Neem dan contact op met Pillen Makelaardij

Locatie

[ { "address": "Albert Cuypstraat 2", "zipCode": "7141 XA", "city": "Groenlo", "lat": 52.0421026, "lng": 6.5996463, "heading": 0, "pitch": 0 } ]

Kenmerken

Overdracht

Prijs
Op aanvraag
Status
Verkocht
Oplevering
In overleg

Bouw

Soort woonhuis
Eengezinswoning, Hoekwoning
Soort bouw
Bestaande bouw
Bouwjaar
1982
Onderhoud binnen
Goed
Onderhoud buiten
Goed

Oppervlakten en inhoud

Woonoppervlakte
174m²
Perceeloppervlakte
230m²
Inhoud
423m³

Indeling

Aantal kamers
6
Aantal slaapkamers
4
Aantal badkamers
1
Aantal verdiepingen
3
Voorzieningen
TV-Kabel, Buitenzonwering, Airconditioning, Rookkanaal, Dakraam, Glasvezel kabel, Natuurlijke ventilatie

Energie

Energielabel
C
Isolatie
Dakisolatie, Muurisolatie, Gedeeltelijk dubbel glas
Warm water
C.V.-ketel
Verwarming
C.V.-ketel, Open haard
Ketel
Nefit HR (2005, Combi-ketel, Eigendom)

Buitenruimte

Ligging
Aan rustige weg, In woonwijk
Tuin
Achtertuin, Voortuin
Achtertuin
Oost, 75m², 750×1000cm

Garage

Soort garage
Carport

Plattegronden

Digitale plattegronden

Meer informatie of afspraak tot bezichtigen

Onderstaand kunt u uw eventuele vragen stellen of geef hier uw voorkeurs data en tijd voor een bezichtiging aan.

Uw bericht is naar ons verzonden. Wij nemen zo snel mogelijk contact met u op.

Sorry, we kunnen helaas niet met zekerheid vaststellen of je een mens of een geautomatiseerde bot/spammer bent. Hierdoor kunnen we het formulier dat je hebt ingevuld niet verzenden. Probeer het opnieuw of neem direct contact op met de makelaar via e-mail.

Er is iets mis gegaan met het versturen van het formulier.
Controleer of u alle velden (goed) heeft ingevoerd en probeer het nog een keer.

recaptcha
reCAPTCHA
PrivacyTerms