Het Blik 58
Groenlo

Omschrijving

2-ONDER-1-KAP WONING rustig gelegen in de kindvriendelijke woonwijk 'Het Blik' aan de rand van Groenlo en nabij de Slinge en het wandelgebied De Halve Maan. De royale uitgebouwde woning met ruime carport en garage/berging met zolderberging is goed onderhouden. De goed onderhouden woning is voorzien van 12 zonnepanelen, van spouw- en dakisolatie en grotendeels van dubbele beglazing. De aangebouwde glazen veranda is voorzien van verlichting en van zonwering en biedt een fijne plek om te genieten van de zonnige achtertuin (die buitenom bereikbaar is). Het bouwjaar van de woning is 1978, de perceelsoppervlakte 270 m², de inhoud circa 473 m³ (exclusief garage/berging) en het gebruiksoppervlakte wonen circa 134 m². Energielabel: A.


INDELING
Begane grond: Via de ruime entree komt u in de hal met meterkast en een royaal toilet v.v. wandcloset en fontein. De L-vormige woonkamer is recent gemoderniseerd en is voorzien van een mooi PVC vloerbedekking, vanuit de eethoek is de keuken bereikbaar. Deze (dichte) keuken biedt toegang tot de overkapping en de achtertuin. De keuken zelf is voorzien van keukenblok met inbouwapparatuur (inductiekookplaat, vaatwasser, koelkast en combimagnetron).
1e Verdieping: Vanaf de overloop zijn er drie slaapkamers bereikbaar (voorheen 4 slaapkamers, eenvoudig te herstellen); de ouders slaapkamer is voorzien van een separate kleedruimte, de ruime badkamer is voorzien van (elektrische) vloerverwarming, een badmeubel, een toilet, een ligbad, een douche en een ruimte voor een wasmachine en een wasdroger.
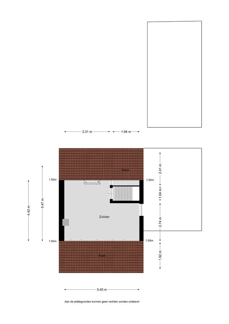
2e Verdieping: Via de vaste trap en het tochtportaal komt u op een ruime zolderkamer, deze is nu in gebruik als logeer- en hobbykamer, maar is eenvoudig op te delen in meerdere (slaap)kamers. Op de zolder is verder bergruimte waar zich ook de CV ketel bevindt (Nefit, 2016).
Extern: De garage/berging beschikt over een werkblok en een inpandige werkplaats en is voorzien van water, elektra en een gasaansluiting voor zowel de verwarming als voor ander gebruik. Boven de garage bevindt zich een bergzolder die via een losse trap bereikbaar is.


ALGEMEEN:
-verwarming middels een gasgestookte Nefit cv-installatie (2016);
-de woning is voorzien van dak- en muurisolatie en grotendeels van dubbele beglazing;
-de woning beschikt over 12 zonnepanelen;
-de woonkamer, keuken en hal zijn voorzien van vloerverwarming;
-de badkamer is voorzien van elektrische vloerverwarming;
-prachtige aangebouwde veranda voorzien van verlichting en zonwering;
-de buitenzijde is recent geschilderd (2019);
-de zonnige achtertuin is via de carport buitenom te bereiken (toegang via een achter de woning gelegen pad is mogelijk);
-ruime oprit voor meerdere auto's.

Locatie

[ { "address": "Het Blik 58", "zipCode": "7141 TK", "city": "Groenlo", "lat": 52.0485476, "lng": 6.608616, "heading": 0, "pitch": 0 } ]

Kenmerken

Overdracht

Prijs
Status
Verkocht
Oplevering
In overleg

Bouw

Soort woonhuis
Eengezinswoning, 2-onder-1-kapwoning
Soort bouw
Bestaande bouw
Bouwjaar
1978
Onderhoud binnen
Goed
Onderhoud buiten
Goed

Oppervlakten en inhoud

Woonoppervlakte
134m²
Perceeloppervlakte
270m²
Inhoud
473m³

Indeling

Aantal kamers
7
Aantal slaapkamers
4
Aantal verdiepingen
3
Voorzieningen
Mechanische ventilatie, TV-Kabel, Buitenzonwering, Zonnepanelen, Rookkanaal, Dakraam, Glasvezel kabel

Energie

Energielabel
A
Isolatie
Dakisolatie, Muurisolatie, Grotendeels dubbelglas
Warm water
C.V.-ketel
Verwarming
C.V.-ketel, Vloerverwarming gedeeltelijk
Ketel
Nefit (2016, Combi-ketel, Eigendom)

Buitenruimte

Ligging
Aan rustige weg, In woonwijk
Tuin
Achtertuin, Voortuin
Achtertuin
Zuid, 124m², 950×1300cm
Schuur
Aangebouwd steen

Garage

Soort garage
Aangebouwd steen

Plattegronden

Digitale plattegronden

Videopresentatie

Meer informatie of afspraak tot bezichtigen

Onderstaand kunt u uw eventuele vragen stellen of geef hier uw voorkeurs data en tijd voor een bezichtiging aan.

Uw bericht is naar ons verzonden. Wij nemen zo snel mogelijk contact met u op.

Sorry, we kunnen helaas niet met zekerheid vaststellen of je een mens of een geautomatiseerde bot/spammer bent. Hierdoor kunnen we het formulier dat je hebt ingevuld niet verzenden. Probeer het opnieuw of neem direct contact op met de makelaar via e-mail.

Er is iets mis gegaan met het versturen van het formulier.
Controleer of u alle velden (goed) heeft ingevoerd en probeer het nog een keer.

recaptcha
reCAPTCHA
PrivacyTerms