Aaltenseweg 81 a
Lichtenvoorde

Omschrijving

Een heerlijke VRIJSTAANDE EENGEZINSWONING, ideaal voor zowel starters als voor (jonge) gezinnen. Zo kan deze ruime woning met ruime bijkeuken en berging het best worden omschreven. De moderne en instapklare woning met 3 slaapkamers en ruime tuin is gunstig gelegen ten opzichte van het centrum, (basis)scholen, speeltuin(en) en parken, maar ook het buitengebied is door de goede ontsluiting snel te bereiken. De diepe en beschutte achtertuin met fraaie bomen op de achtergrond biedt veel privacy en de overkapping nodigt uit tot gezellige en lange avonden bij de houtkachel. De achtertuin biedt direct toegang tot een rustige en kindvriendelijke woonstraat. Het bouwjaar van de woning is 1962, het gebruiksoppervlakte wonen bedraagt circa 119m² en de inhoud bedraagt circa 503m³. Het perceeloppervlakte bedraagt 320m².

INDELING:
Begane grond: Entree/hal biedt toegang tot de keuken, een provisiekelder en een gemoderniseerd toilet. De keuken biedt ruimte aan een eettafel en een inbouwkeuken die is opgebouwd in twee delen (en voorzien van een granieten aanrechtblad, een gaskookplaat, een RVS afzuigkap, een combimagnetron, een vaatwasmachine en koelkast).
De woonkamer (met erker) is bereikbaar vanuit de keuken en beschikt over een sfeervolle houtkachel. Een loopdeur biedt direct toegang tot het terras en de achtertuin. De vele ramen maken dat er sprake is van een lichte en zonnige ruimte.
De ruime bijkeuken is bereikbaar via de keuken. Door de dubbele deur is de bijkeuken goed bereikbaar vanaf de parkeerplaats aan de voorzijde van de woning. De bijkeuken is voorzien van een plavuizen vloer en van aansluitingen voor een wasmachine en -droger. Boven de bijkeuken bevindt zich een ruime bergzolder die bereikbaar is via een losse trap.
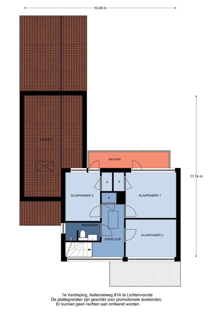
1ste verdieping: Vanuit de hal loopt de trapopgang naar de overloop op de eerste verdieping. De overloop biedt toegang tot de volledig betegelde badkamer (voorzien van een ruime douche, toilet, wastafel, designradiator en vloerverwarming) en tot 3 slaapkamers waarvan twee met toegang tot het aan de achterzijde gelegen balkon. Twee slaapkamers en de overloop zijn voorzien van een inbouwkast.
2de verdieping: zolderberging, vanuit de overloop bereikbaar via een vlizotrap.

ALGEMEEN:
- de woning wordt centraal verwarmd via een CV installatie (ATAG HR 2018);
- de woning is in 2017 voorzien van spouwmuurisolatie en gedeeltelijk van HR++ glas;
- schilderwerk buitenzijde is van 2018;
- fraai aangelegde voor- en achtertuin met ruime overkapping op 2 niveaus.
- de woning is gelegen op loopafstand van het centrum, dichtbij scholen, speeltuin en het park;

Kortom: een fijne, ruime gezinswoning met een fraaie (achter)tuin, veilig ontsloten via de achterliggende woonstraat.

Wil je deze sfeervolle en instapklare woning bezichtigen? Neem dan contact op met Pillen Makelaars voor het maken van een afspraak.

Locatie

[ { "address": "Aaltenseweg 81", "zipCode": "7131 NC", "city": "Lichtenvoorde", "lat": 51.9836953, "lng": 6.5812084, "heading": 0, "pitch": 0 } ]

Kenmerken

Overdracht

Prijs
Op aanvraag
Status
Verkocht
Oplevering
In overleg

Bouw

Soort woonhuis
Eengezinswoning, Vrijstaande woning
Soort bouw
Bestaande bouw
Bouwjaar
1962
Onderhoud binnen
Goed
Onderhoud buiten
Goed

Oppervlakten en inhoud

Woonoppervlakte
119m²
Perceeloppervlakte
320m²
Overig oppervlakte
6m²
Inhoud
503m³

Indeling

Aantal kamers
5
Aantal slaapkamers
3
Aantal badkamers
1
Aantal verdiepingen
4
Voorzieningen
TV-Kabel, Rookkanaal, Glasvezel kabel, Natuurlijke ventilatie

Energie

Energielabel
F
Isolatie
Muurisolatie, Gedeeltelijk dubbel glas
Warm water
C.V.-ketel
Verwarming
C.V.-ketel
Ketel
ATAG HR (2018, Combi-ketel, Eigendom)

Buitenruimte

Ligging
In woonwijk
Balkon
Ja
Tuin
Achtertuin, Voortuin
Achtertuin
Noord, 126m², 700×1800cm

Garage

Soort garage
Inpandig

Plattegronden

Digitale plattegronden

Videopresentatie

Meer informatie of afspraak tot bezichtigen

Onderstaand kunt u uw eventuele vragen stellen of geef hier uw voorkeurs data en tijd voor een bezichtiging aan.

Uw bericht is naar ons verzonden. Wij nemen zo snel mogelijk contact met u op.

Sorry, we kunnen helaas niet met zekerheid vaststellen of je een mens of een geautomatiseerde bot/spammer bent. Hierdoor kunnen we het formulier dat je hebt ingevuld niet verzenden. Probeer het opnieuw of neem direct contact op met de makelaar via e-mail.

Er is iets mis gegaan met het versturen van het formulier.
Controleer of u alle velden (goed) heeft ingevoerd en probeer het nog een keer.

recaptcha
reCAPTCHA
PrivacyTerms