Derde Broekdijk 10
Lichtenvoorde

Omschrijving

Ben je al een tijdje opzoek naar jouw droomhuis? Een nette TWEE-ONDER-EEN-KAP woning waar je zo in kunt? Dan zou deze goed onderhouden en instapklare woning, gelegen in een kindvriendelijke en rustige woonwijk, wel eens jouw nieuwe thuis kunnen zijn. Deze onderhoudsvriendelijke woning is voorzien van kunststof kozijnen, grotendeels met rolluiken. Door de 2 dakkappelen op de tweede verdieping beschikt de woning over 4 slaapkamers van een mooi formaat. De op het zuidwesten gelegen achtertuin is zowel vanuit de woonkamer (via een brede schuifpui) als buitenom goed bereikbaar. Door de ruime tuinkamer (voorzien van een glazen schuifpui) is het nog tot laat in het seizoen heerlijk buiten zitten. De woning is gebouwd in 1997, heeft een inhoud van 370m³, een gebruiksoppervlakte wonen van 104m² en staat op een perceel van 180m².

Indeling:
Begane grond: entree/hal met toiletruimte voorzien van toilet en fonteintje, meterkast en trapopgang, zonnige woonkamer met schuifpui naar de achtertuin, half open keuken voorzien van een moderne hoekkeuken (2021) met inbouwapparatuur (o.a. koelkast, oven, combimagnetron, afzuigkap, inductiekookplaat en vaatwasser).

Eerste verdieping: overloop, 2 slaapkamers (voorheen 3) waarvan de ouderslaapkamer is voorzien van een ruime inbouw kledingkast en een airco-unit, De badkamer is in 2018 geheel vernieuwd en volledig betegeld en beschikt over een ligbad, inloopdouche, badmeubel met twee kranen en een zwevend toilet. De overloop en slaapkamers zijn voorzien van een laminaat vloerbedekking.

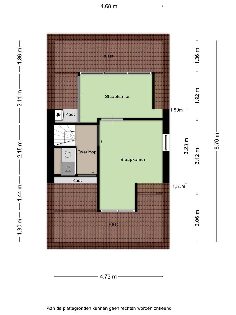
Tweede verdieping: via vaste trap bereikbare zolderverdieping met dakkapellen aan voor- en achterzijde. Deze ruimte is praktisch ingedeeld in een voorzolder met Cv-ruimte en wasruimte met aansluiting voor wasmachine en -droger en 2 (slaap)kamers (eveneens voorzien van airco). De gehele zolderverdieping is voorzien van een laminaat vloerbedekking.


Algemeen:
-de woning is volledig geïsoleerd (dak-, vloer- en spouwmuurisolatie en dubbele beglazing);
-voorzien van 9 zonnepanelen (op de tuinkamer/schuur);
-de woning is volledig voorzien van kunststof kozijnen, deuren en ramen;
-de woning is grotendeels voorzien van rolluiken;
-grote ruime zolder met 2 dakkapellen en twee (slaap)kamers;
-moderne badkamer uit 2018;
-keuken vernieuwd in 2021;
-Cv-ketel uit 2018 (ATAG HR combiketel);
-kindvriendelijke ligging nabij openbaar groen. (Basis)scholen op loopafstand.

Kortom: een verrassend ruime en onderhoudsvriendelijk woning, gelegen aan een autoluwe en groene woonstraat, met alle gemakken binnen handbereik. Kom snel kijken en ervaar zelf waarom dit de perfecte plek is. Een afspraak voor een bezichtiging maak je eenvoudig bij Pillen Makelaars.

Tot zekerheid voor de nakoming van de verplichtingen van koper zal deze een schriftelijke door een bankinstelling afgegeven bankgarantie doen stellen ter hoogte van 10% van de overeengekomen koopsom. In plaats van deze bankgarantie te stellen kan koper een waarborgsom storten op de derdengeldenrekening van de notaris ter hoogte van 10% van de overeengekomen koopsom. Verder zal in de koopovereenkomst een 'ouderdomsclausule' worden opgenomen.

Locatie

[ { "address": "Derde Broekdijk 10", "zipCode": "7132 EC", "city": "Lichtenvoorde", "lat": 51.9797089, "lng": 6.549325, "heading": 0, "pitch": 0 } ]

Kenmerken

Overdracht

Prijs
€ 369.000 k.k.
Status
Verkocht
Oplevering
In overleg

Bouw

Soort woonhuis
Eengezinswoning, 2-onder-1-kapwoning
Soort bouw
Bestaande bouw
Bouwjaar
1997
Onderhoud binnen
Goed
Onderhoud buiten
Goed

Oppervlakten en inhoud

Woonoppervlakte
104m²
Perceeloppervlakte
180m²
Inhoud
370m³

Indeling

Aantal kamers
6
Aantal slaapkamers
4
Aantal badkamers
1
Aantal verdiepingen
3
Voorzieningen
Airconditioning, Buitenzonwering, Glasvezel kabel, Mechanische ventilatie, Rolluiken, Schuifpui, Zonnepanelen

Energie

Energielabel
B
Isolatie
Dakisolatie, Dubbel glas, Muurisolatie, Vloerisolatie, Volledig geisoleerd
Warm water
C.V.-ketel
Verwarming
C.V.-ketel
Ketel
ATAG HR (2018, Combi-ketel, Eigendom)

Buitenruimte

Ligging
Aan rustige weg, In woonwijk, Vrij uitzicht
Tuin
Achtertuin
Achtertuin
Zuidwest, 70m², 700×1100cm
Schuur
Vrijstaand steen
Faciliteiten schuur
Voorzien van elektra

Garage

Plattegronden

Digitale plattegronden

Videopresentatie

Meer informatie of afspraak tot bezichtigen

Onderstaand kunt u uw eventuele vragen stellen of geef hier uw voorkeurs data en tijd voor een bezichtiging aan.

Uw bericht is naar ons verzonden. Wij nemen zo snel mogelijk contact met u op.

Sorry, we kunnen helaas niet met zekerheid vaststellen of je een mens of een geautomatiseerde bot/spammer bent. Hierdoor kunnen we het formulier dat je hebt ingevuld niet verzenden. Probeer het opnieuw of neem direct contact op met de makelaar via e-mail.

Er is iets mis gegaan met het versturen van het formulier.
Controleer of u alle velden (goed) heeft ingevoerd en probeer het nog een keer.

recaptcha
reCAPTCHA
PrivacyTerms