Sleedoornstraat 6
Lichtenvoorde

Omschrijving

Stel je voor: Je eigen, ruime en goed onderhouden 2-ONDER-1-KAP woning met oprit, carport en inpandige garage, perfect gelegen met alle gemakken binnen handbereik. De ideale plek om thuis te komen na een drukke dag. 

De woning bevindt zich op korte afstand van vele voorzieningen. Denk aan het altijd gezellige en gastvrije centrum van Lichtenvoorde met een gevarieerd winkelaanbod, vele terrassen, eet- en drinkgelegenheden. Maar ook sportfaciliteiten, (basis)scholen, kinderopvang en het Flierbeekpark bevinden zich op slechts enkele wandel- en/of fietsminuten afstand. Deze eengezinswoning is gebouwd in 1988, heeft een gebruiksoppervlakte wonen van 118 m2, een inhoud van 480m3 en staat op een ruim perceel van 236m2. 


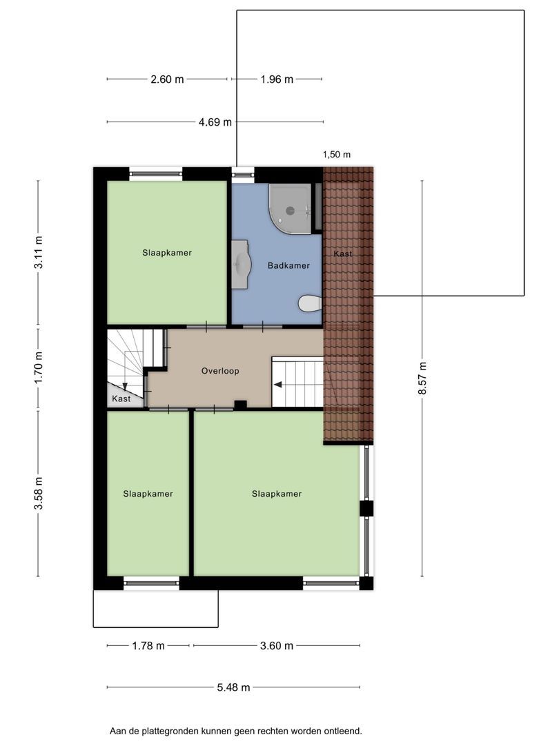
INDELING:
Begane grond: Je komt de woning binnen in een centrale hal/entree, hier bevinden zich de meterkast, de trapopgang naar de eerste verdieping en een toegangsdeur tot de L-vormige woonkamer. Deze ruime en lichte woonkamer grenst aan de half open keuken, welke voorzien is van een L-vormige keuken voorzien van inbouwapparatuur (inductiekookplaat, afzuigkap en koelkast). Via de keuken loop je door naar de bijkeuken, hier bevinden zich een toiletruimte, aansluitingen voor wasmachine en -droger en toegangsdeuren naar de garage en de achtertuin. De garage is voorzien van een plavuizen vloer en een tweede keukenblok.

Eerste verdieping: Vanuit de hal leidt de trap naar een overloop die toegang biedt tot 3 fijne en zonnige slaapkamers, een trapkast en een badkamer die is voorzien van een wastafelmeubel, een douche en een toilet. Ook de zolderverdieping is vanuit de overloop bereikbaar.

Zolderverdieping: Via een vaste trap bereik je de bergzolder, een fijne ruimte met veel lichtinval die zeer geschikt is om als 4e slaapkamer te gebruiken.



ALGEMEEN:
-    parkeren op eigen terrein;
-    er is een ruime garage aanwezig;
-    de woning is gebouwd in 1988;
-    beschikt over zonnepanelen (8 stuks van 240 wp, 2013);
-    voorzien van dubbel glas, dak-, vloer- en muurisolatie en beschikt over energielabel B;
-    verwarming middels Cv-installatie (ATAG HR 2009);
-    nagenoeg de gehele woning voorzien van rolluiken.



Tot zekerheid voor de nakoming van de verplichtingen van koper zal deze een schriftelijke door een bankinstelling afgegeven bankgarantie doen stellen ter hoogte van 10% van de overeengekomen koopsom. In plaats van deze bankgarantie te stellen kan koper een waarborgsom storten op de derdengeldenrekening van de notaris ter hoogte van 10% van de overeengekomen koopsom. Verder zal in de koopovereenkomst een 'ouderdomsclausule' en een 'niet bewonersclausule' worden opgenomen.

Locatie

[ { "address": "Sleedoornstraat 6", "zipCode": "7132 CH", "city": "Lichtenvoorde", "lat": 51.9831955, "lng": 6.5550751, "heading": 0, "pitch": 0 } ]

Kenmerken

Overdracht

Prijs
€ 380.000 k.k.
Status
Verkocht
Oplevering
In overleg

Bouw

Soort woonhuis
Eengezinswoning, 2-onder-1-kapwoning
Soort bouw
Bestaande bouw
Bouwjaar
1988
Onderhoud binnen
Goed
Onderhoud buiten
Goed

Oppervlakten en inhoud

Woonoppervlakte
118m²
Perceeloppervlakte
236m²
Overig oppervlakte
16m²
Inhoud
480m³

Indeling

Aantal kamers
6
Aantal slaapkamers
4
Aantal badkamers
1
Aantal verdiepingen
3
Voorzieningen
Dakraam, Glasvezel kabel, Natuurlijke ventilatie, Rolluiken, TV-Kabel, Zonnepanelen

Energie

Energielabel
B
Isolatie
Dakisolatie, Dubbel glas, Muurisolatie, Vloerisolatie
Warm water
C.V.-ketel
Verwarming
C.V.-ketel
Ketel
ATAG (2009, Combi-ketel, Eigendom)

Buitenruimte

Ligging
Aan rustige weg, In woonwijk
Tuin
Achtertuin, Voortuin
Achtertuin
Noordoost, 88m², 800×1200cm

Garage

Soort garage
Inpandig
Capaciteit
1
Voorzieningen
Voorzien van elektra, Voorzien van water
Isolatie
Dakisolatie

Plattegronden

Digitale plattegronden

Videopresentatie

Meer informatie of afspraak tot bezichtigen

Onderstaand kunt u uw eventuele vragen stellen of geef hier uw voorkeurs data en tijd voor een bezichtiging aan.

Uw bericht is naar ons verzonden. Wij nemen zo snel mogelijk contact met u op.

Sorry, we kunnen helaas niet met zekerheid vaststellen of je een mens of een geautomatiseerde bot/spammer bent. Hierdoor kunnen we het formulier dat je hebt ingevuld niet verzenden. Probeer het opnieuw of neem direct contact op met de makelaar via e-mail.

Er is iets mis gegaan met het versturen van het formulier.
Controleer of u alle velden (goed) heeft ingevoerd en probeer het nog een keer.

recaptcha
reCAPTCHA
PrivacyTerms