Pastoor Mientjesstraat 9
Lievelde

Omschrijving

Let Op!! Door de vele reacties op deze woning kunnen we op dit moment geen nieuwe bezichtigingen meer inplannen. Wanneer u interesse heeft kunnen we u op de wachtlijst voor deze woning zetten!


VRIJSTAANDE WOONBOERDERIJ fraai gelegen aan de rand van het kerkdorp Lievelde. De woning is gelegen in een ruim opgezette, rustige en kindvriendelijke woonstraat en grenst aan de achterzijde aan openbaar groen en het buitengebied. Het bouwjaar van de woning is 1928, maar de woning is de afgelopen jaren op mooie wijze aangepast aan de huidige (woon)eisen. De perceeloppervlakte bedraagt 739 m², de inhoud van de woning is ca. 810 m³ en het gebruiksoppervlakte wonen ruim 208 m².

INDELING:
BEGANE GROND: De officiële voordeur biedt toegang tot een hal met trapopgang, meterkast en het kantoor aan de voorzijde. Vanuit deze hal is eveneens de ruime woonkeuken bereikbaar. De woonkeuken beschikt over een royale inbouwkeuken voorzien van apparatuur (inductiekookplaat, koelkast, diepvries, vaatwasser, oven, magnetron en dubbele spoelunit). Deze ruimte vormt het hart van de woning en biedt toegang tot een tv-kamer, een tweede entree en de ruime woonkamer. De gezellige woonkamer kenmerkt zich door authentieke gebinten, schouw (met mogelijkheid voor een houtkachel). De woonkamer geeft toegang tot het naast de woning gelegen terras. Ook de tweede entree is direct vanuit de woonkamer bereikbaar. Deze ruimte, die in de praktijk als hoofdentree wordt gebruikt, beschikt over een garderobe en een bergkast en biedt toegang tot het toilet en de (geheel betegelde) wasruimte, welke voorzien is van bergruimte, een dubbel badmeubel en opstelruimte voor wasmachine en -droger. De bovengelegen bergzolder is via een luik vanuit de entreeruimte bereikbaar.
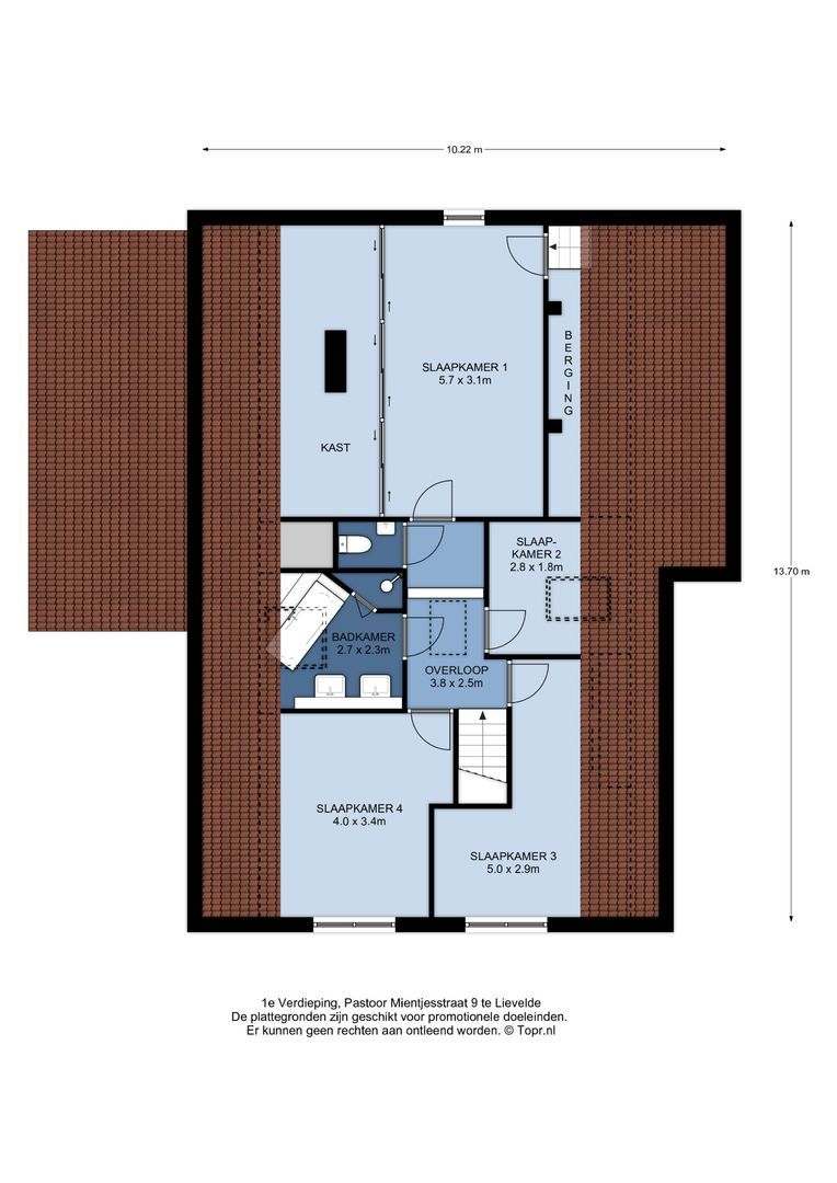
1e VERDIEPING: Via de vaste trap bereikbare overloop biedt toegang tot 4 slaapkamers, waarvan de 'master bedroom' over een kamer brede kastenwand beschikt. Vanuit deze kamer is ook de bergzolder bereikbaar. Verder vindt u op deze verdieping een tweede toiletruimte en de badkamer die is voorzien van een ligbad met whirlpool functie, doucheruimte en twee wastafels en verwarmt wordt via vloerverwarming.

Extern: De zijentree biedt 'overdekt' toegang tot de aangebouwde berging. In de tuin bevindt zich een vrijstaande, houten, schuur. Parkeren kan met meerdere auto's op eigen perceel. Zowel de achtertuin als de aan de zijkant gelegen (ruime) zijtuinen bieden volop mogelijkheden tot het creëren van (zit)hoeken waarbij de gehele dag kan worden genoten van zon, schaduw en privacy.

ALGEMEEN:
-verwarming middels gasgestookte Combi-ketel (NEFIT HR 2003);
-de woning is grotendeels voorzien van dubbele beglazing (deels HR++);
-de woning beschikt over 25 zonnepanelen;
-de woning kenmerkt zich door 'steensverband' metselwerk en (na)isolatie van binnen uit;
-gedeeltelijk voorzien van vloerisolatie;
-vloerverwarming in keuken, achter-entree en badkamer;
-aansluiting voor een houtkachel in woonkamer;
-door de indeling is werken aan huis zeer goed realiseerbaar
-het perceel maakt deel uit van de zogenoemde Circumvallatielinie rondom Groenlo en is aangewezen als archeologisch rijksmonument;
-voorzieningen als basisschool en NS-station op loopafstand.


Deze aantrekkelijke woonboerderij is direct bewoonbaar. Indien je graag landelijk wil wonen, maar toch ook graag dicht bij de gebruikelijke voorzieningen, dan verdient deze woning zeker 'een kijkje'.

Locatie

[ { "address": "Pastoor Mientjesstraat 9", "zipCode": "7137 SB", "city": "Lievelde", "lat": 52.0079704, "lng": 6.5974732, "heading": 0, "pitch": 0 } ]

Kenmerken

Overdracht

Prijs
Status
Verkocht
Oplevering
In overleg

Bouw

Soort woonhuis
Eengezinswoning, Vrijstaande woning
Soort bouw
Bestaande bouw
Bouwjaar
1928
Onderhoud binnen
Goed
Onderhoud buiten
Goed

Oppervlakten en inhoud

Woonoppervlakte
208m²
Perceeloppervlakte
739m²
Inhoud
810m³

Indeling

Aantal kamers
10
Aantal slaapkamers
4
Aantal verdiepingen
2
Voorzieningen
Mechanische ventilatie, Rolluiken, TV-Kabel, Zonnepanelen, Rookkanaal, Dakraam, Glasvezel kabel, Natuurlijke ventilatie

Energie

Energielabel
C
Isolatie
Dakisolatie, Muurisolatie, Vloerisolatie, Gedeeltelijk dubbel glas
Warm water
C.V.-ketel
Verwarming
C.V.-ketel
Ketel
NEFIT HR ketel (2003, Combi-ketel, Eigendom)

Buitenruimte

Ligging
Aan rustige weg, In woonwijk, Vrij uitzicht, Beschutte ligging
Tuin
Tuin rondom
Schuur
Vrijstaand hout

Garage

Plattegronden

Digitale plattegronden

Videopresentatie

Meer informatie of afspraak tot bezichtigen

Onderstaand kunt u uw eventuele vragen stellen of geef hier uw voorkeurs data en tijd voor een bezichtiging aan.

Uw bericht is naar ons verzonden. Wij nemen zo snel mogelijk contact met u op.

Sorry, we kunnen helaas niet met zekerheid vaststellen of je een mens of een geautomatiseerde bot/spammer bent. Hierdoor kunnen we het formulier dat je hebt ingevuld niet verzenden. Probeer het opnieuw of neem direct contact op met de makelaar via e-mail.

Er is iets mis gegaan met het versturen van het formulier.
Controleer of u alle velden (goed) heeft ingevoerd en probeer het nog een keer.

recaptcha
reCAPTCHA
PrivacyTerms